unser neues "Rotes Familienhaus Nr.7" (bis max. 6 Personen).

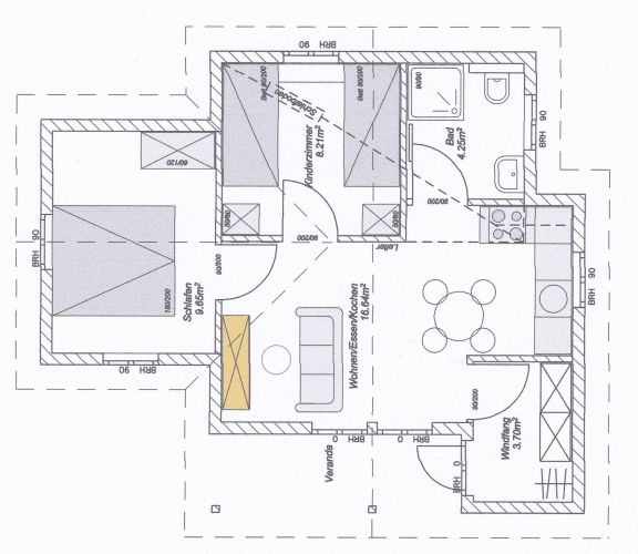
Das Ferienhaus ist ideal für Familien mit kleineren Kindern, da es über ein Kinderzimmer mit zwei Einzelbetten (0,9x2m) verfügt. Das "Eltern" Schlafzimmer ist mit einem Doppelbett (1,8 x 2 m) ausgestattet. Die größeren Kinder finden Platz auf dem Schlafboden mit drei bezogenen Matratzen (Bettzeug bitte selbst mitbringen). In den Schlafzimmern finden sie in Schränken ausreichend Stauraum für ihre Kleidung. In dem gemütlich eingerichten Wohn-/ Essraum befindet sich ein Esstisch für 6 Personen, der auch für Abends zu einer lustigen Spielerunde einlädt. Hier kann man einen erlebnisreichen Tag ausklingen lassen. Die Küchenzeile ist mit einem 4 Plattenkochfeld, Backofen, Geschirrspüler, Spüle und Kühlschrank,Toaster, Kaffeemaschine und Wasserkocher, etc. komplett für 6  Personen ausgestattet. Das moderne Badezimmer verfügt über Dusche und WC. Alle Räume werden mit Elektroheizkörper beheizt, die eine schnelle, angenehme Wärme verbreiten und somit ihren Aufenthalt im Haus auch für die "kältere" Jahreszeit gemütlich werden lässt. Die Grundfläche beträgt ca. 42 qm zuzüglich Schlafboden.

Zur Grundausstattung gehören: Bettwäsche in den Schlafzimmern, 1 Satz Handtücher, Fön. Für größere Kinder die auf dem Schlafboden schlafen, bringen sie bitte Schlafsacke/Decke und Kopfkissen mit.

Unser Haus Nr.7 und Nr.8 sind baugleich, sie unterscheiden sich lediglich im Design.

Kosten: ab 95,-€/Nacht, zuzüglich 60,-€ Nebenkosten

Anfragen & Buchen

Erwachsene
Kinder